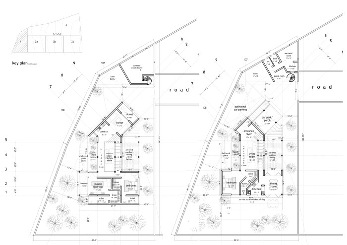
getaway homes Type: 2013, Architecture, M, Residential, Urbanism unit 1 unit 2a unit 2a unit 2a Typology: Residential Site Area: 1.2 acres Built-up Area: 2,255 sft Location: Moinabad, Chevella, Telangana, India Year: 2014 Status: Proposed Related